immobilimpresa

Terreno urbano in Vendita Rivalta di Torino

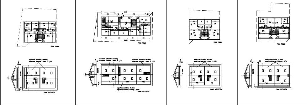
Clicca sull'immagine per ingrandirla

Rivalta di Torino

(TO) via Vittorio Alfieri
Immobilimpresa 10804718Riferimento Agenzia 3343_446115231 – In zona molto commerciale proponiamo in vendita terreno edificabile con la possibilit? di realizzare: delle ville o una piccola palazzina . Sul terreno ? gi? stato approvato dal Comune di Rivalta Tori... Vedi di più
Prezzo: € 90.000   Fai una controproposta

Hai un immobile simile da vendere? Vendine uno uguale

La responsabilità del contenuto dell'annuncio fa capo all'inserzionista, non forniamo garanzie per le informazioni pubblicate da terzi

Contatta per l'annuncio

Ricevi più proposte: le caratteristiche dell'immobile che stai cercando ed i tuoi recapiti, verranno inviati alle agenzie immobiliari della zona di tuo interesse

Registrandoti a questo servizio dichiari di aver letto e di accettare l'Informativa alla Privacy

* I campi con l'asterisco sono obbligatori

CONSULENZA Prestiti
Personali e MUTUO