immobilimpresa

Terreno urbano in Vendita Perugia

120.000 calcola mutuo

Mq. 1500

1 locali

Clicca sull'immagine per ingrandirla

Perugia

(PG) Maestrello
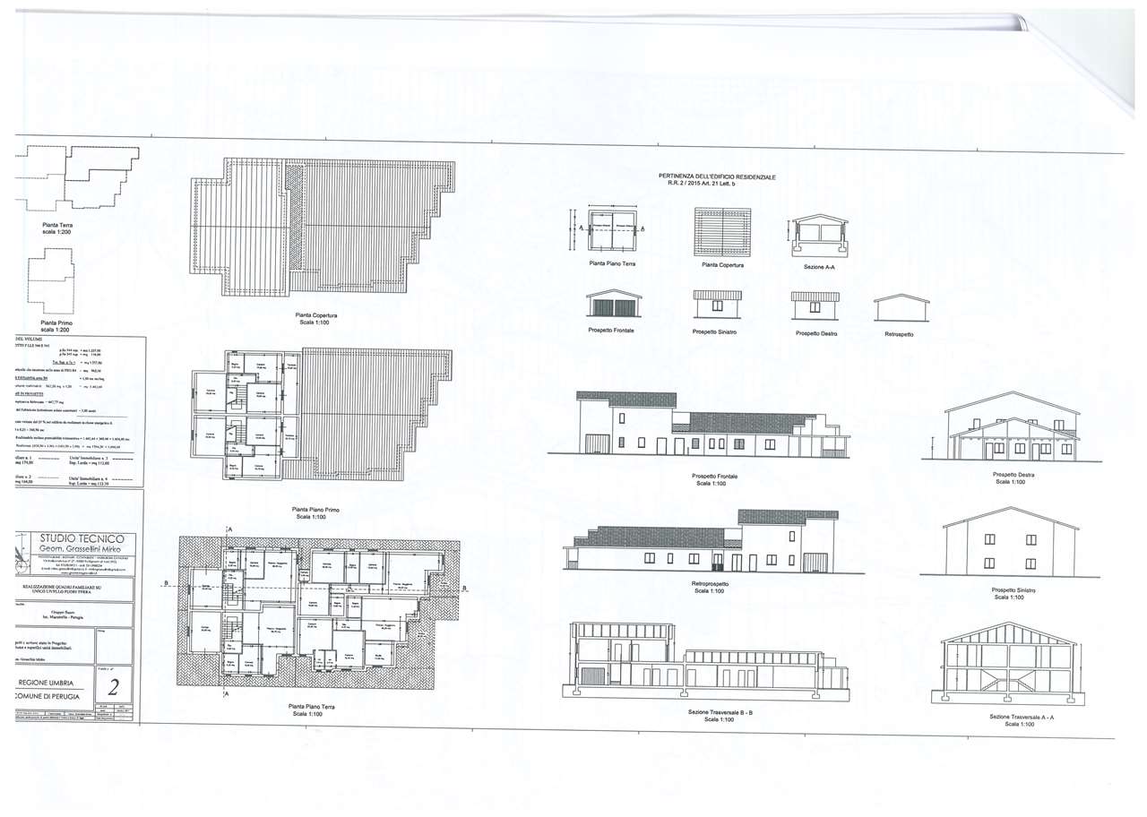
Immobilimpresa 10805018Riferimento Agenzia V001944 – Perugia. Vendita di terreno di mc 1.443,84 realizzabili con relativo progetto di ville quadrifamiliari (2 su unico livello+ 2 su due livelli) con quadratura commerciale che varia; da 170 a 255 mq in l... Vedi di più
Prezzo: € 120.000   Fai una controproposta

Hai un immobile simile da vendere? Vendine uno uguale

La responsabilità del contenuto dell'annuncio fa capo all'inserzionista, non forniamo garanzie per le informazioni pubblicate da terzi

Contatta per l'annuncio

Ricevi più proposte: le caratteristiche dell'immobile che stai cercando ed i tuoi recapiti, verranno inviati alle agenzie immobiliari della zona di tuo interesse

Registrandoti a questo servizio dichiari di aver letto e di accettare l'Informativa alla Privacy

* I campi con l'asterisco sono obbligatori

CONSULENZA Prestiti
Personali e MUTUO