immobilimpresa

Terreno urbano in Vendita Pinzolo

225.000 calcola mutuo

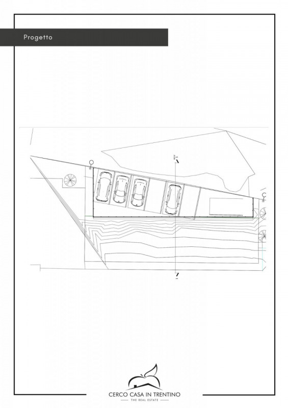
Mq. 240

Clicca sull'immagine per ingrandirla

Madonna di Campiglio

- Pinzolo (TN) Via Presanella, 18
Immobilimpresa 10851726Riferimento Agenzia P.11 – A Madonna di Campiglio, in una posizione strategica e comoda al centro, si propone in vendita un’area di circa 240 mq, ideale per la creazione di sette posti auto esterni. La zona è facil... Vedi di più
Prezzo: € 225.000   Fai una controproposta

Hai un immobile simile da vendere? Vendine uno uguale

La responsabilità del contenuto dell'annuncio fa capo all'inserzionista, non forniamo garanzie per le informazioni pubblicate da terzi

Contatta per l'annuncio

Ricevi più proposte: le caratteristiche dell'immobile che stai cercando ed i tuoi recapiti, verranno inviati alle agenzie immobiliari della zona di tuo interesse

Registrandoti a questo servizio dichiari di aver letto e di accettare l'Informativa alla Privacy

* I campi con l'asterisco sono obbligatori

CONSULENZA Prestiti
Personali e MUTUO