immobilimpresa

Capannone in Affitto Parma

94.000

Mq. 17368

Clicca sull'immagine per ingrandirla

Parma

(PR)
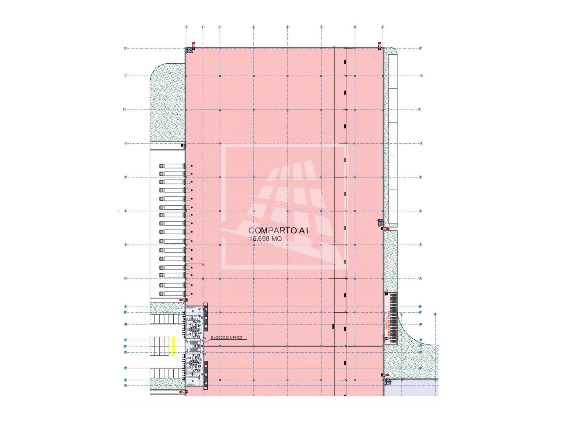
Immobilimpresa 10858947Riferimento Agenzia VJ1047/1 – Parma - Capannone Logistico (Rif. VJ1047/1) situato a 5 minuti dal casello di Parma in ottimo stato di conservazione certificato REI 120.<br>Il magazzino, di mq 16.698, ha un'altezza sotto trave... Vedi di più
Prezzo: € 94.000   Fai una controproposta

Hai un immobile simile da vendere? Vendine uno uguale

La responsabilità del contenuto dell'annuncio fa capo all'inserzionista, non forniamo garanzie per le informazioni pubblicate da terzi

Contatta per l'annuncio

Ricevi più proposte: le caratteristiche dell'immobile che stai cercando ed i tuoi recapiti, verranno inviati alle agenzie immobiliari della zona di tuo interesse

Registrandoti a questo servizio dichiari di aver letto e di accettare l'Informativa alla Privacy

* I campi con l'asterisco sono obbligatori

CONSULENZA Prestiti
Personali e MUTUO