immobilimpresa

Ufficio in Affitto Marcon

1.600

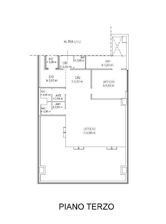
Mq. 210

Clicca sull'immagine per ingrandirla

Marcon

- Marcon (VE) Via Sebastiano Venier
Immobilimpresa 10887353Riferimento Agenzia NU2503 – MARCON FRONTE TANGENZIALE ufficio al terzo piano con ascensore di circa 210 mq open space, due uffici chiusi, magazzino, doppi servizi. Impianto di cablaggio, aria condizionata e riscaldamento in pomp... Vedi di più
Prezzo: € 1.600   Fai una controproposta

Hai un immobile simile da vendere? Vendine uno uguale

La responsabilità del contenuto dell'annuncio fa capo all'inserzionista, non forniamo garanzie per le informazioni pubblicate da terzi

Contatta per l'annuncio

Ricevi più proposte: le caratteristiche dell'immobile che stai cercando ed i tuoi recapiti, verranno inviati alle agenzie immobiliari della zona di tuo interesse

Registrandoti a questo servizio dichiari di aver letto e di accettare l'Informativa alla Privacy

* I campi con l'asterisco sono obbligatori

CONSULENZA Prestiti
Personali e MUTUO