immobilimpresa

Locale commerciale/Negozio in Vendita Tusa

462.000 calcola mutuo

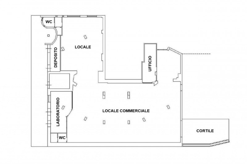
Mq. 392

1 locali

Clicca sull'immagine per ingrandirla

Tusa

(ME) Via Nazionale, 1-1A, 98079 Castel di Tusa ME, Italia
Immobilimpresa 10906683Riferimento Agenzia 2537367 – Quest’immobile viene venduto tramite asta online. Negozio sito a Tusa (ME), frazione Castel di Tusa, via Nazionale 1-1A (fronte Piazza Stazione). Il contesto è semicentrale con traffico ... Vedi di più
Prezzo: € 462.000   Fai una controproposta

Hai un immobile simile da vendere? Vendine uno uguale

La responsabilità del contenuto dell'annuncio fa capo all'inserzionista, non forniamo garanzie per le informazioni pubblicate da terzi

Contatta per l'annuncio

Ricevi più proposte: le caratteristiche dell'immobile che stai cercando ed i tuoi recapiti, verranno inviati alle agenzie immobiliari della zona di tuo interesse

Registrandoti a questo servizio dichiari di aver letto e di accettare l'Informativa alla Privacy

* I campi con l'asterisco sono obbligatori

CONSULENZA Prestiti
Personali e MUTUO