immobilimpresa

Locale commerciale/Negozio in Vendita Sant'Ambrogio di Valpolicella

Clicca sull'immagine per ingrandirla

Sant'Ambrogio di Valpolicella

- Sant'Ambrogio di Valpolicella (VR) Via Giacomo Matteotti 3
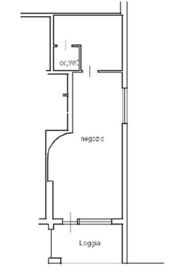
Immobilimpresa 10918001Riferimento Agenzia GB04022026 – SANT'AMBROGIO DI VALPOLICELLA (VR) VIA GIACOMO MATTEOTTI 3 - Piena proprietà di negozio al piano terra. Immobile soggetto a E. I. n.ro 371/2020 - LOTTO 5 - Tribunale di VERONA PREZZO BASE D'A... Vedi di più
Prezzo: € 82.500   Fai una controproposta

Hai un immobile simile da vendere? Vendine uno uguale

La responsabilità del contenuto dell'annuncio fa capo all'inserzionista, non forniamo garanzie per le informazioni pubblicate da terzi

Contatta per l'annuncio

Ricevi più proposte: le caratteristiche dell'immobile che stai cercando ed i tuoi recapiti, verranno inviati alle agenzie immobiliari della zona di tuo interesse

Registrandoti a questo servizio dichiari di aver letto e di accettare l'Informativa alla Privacy

* I campi con l'asterisco sono obbligatori

CONSULENZA Prestiti
Personali e MUTUO