immobilimpresa

Locale commerciale/Negozio in Vendita Bologna

Clicca sull'immagine per ingrandirla

Centro Storico

- Bologna (BO) Via Fondazza
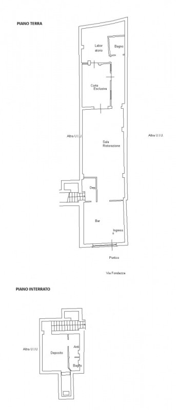
Immobilimpresa 10920579Riferimento Agenzia BO 927 – Via Fondazza, negozio A REDDITO di mq.90 e cosi attualmente disposto: ingresso su zona bar, sala ristorazione, laboratorio, bagno, deposito e corte esclusiva. Al piano interrato, collegato con scala i... Vedi di più
Prezzo: € 290.000   Fai una controproposta

Hai un immobile simile da vendere? Vendine uno uguale

La responsabilità del contenuto dell'annuncio fa capo all'inserzionista, non forniamo garanzie per le informazioni pubblicate da terzi

Contatta per l'annuncio

Ricevi più proposte: le caratteristiche dell'immobile che stai cercando ed i tuoi recapiti, verranno inviati alle agenzie immobiliari della zona di tuo interesse

Registrandoti a questo servizio dichiari di aver letto e di accettare l'Informativa alla Privacy

* I campi con l'asterisco sono obbligatori

CONSULENZA Prestiti
Personali e MUTUO