immobilimpresa

Capannone in Vendita Bisceglie

955.255 calcola mutuo

Mq. 1514

9 locali

Clicca sull'immagine per ingrandirla

Bisceglie

(BT) Via della Comunita' Europea, 7, 76011 Bisceglie BT, Italia
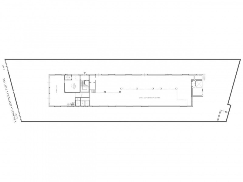
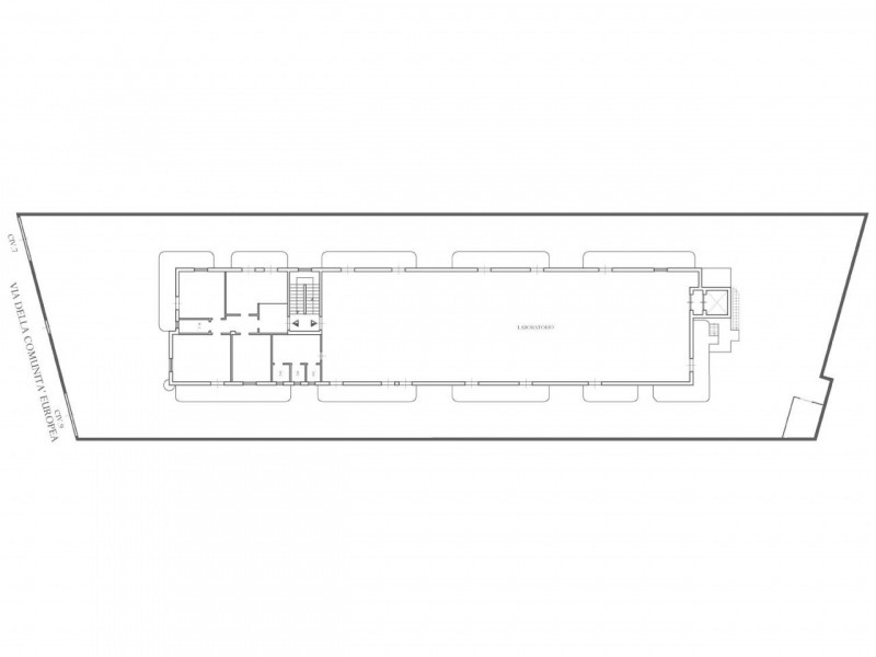
Immobilimpresa 10922233Riferimento Agenzia 2537846 – Quest’immobile viene venduto tramite asta online. Capannone con uffici sito a Bisceglie (BT), in via della Comunità Europea nn.7-9. Trattasi di complesso produttivo di due piani fuori t... Vedi di più
Prezzo: € 955.255   Fai una controproposta

Hai un immobile simile da vendere? Vendine uno uguale

La responsabilità del contenuto dell'annuncio fa capo all'inserzionista, non forniamo garanzie per le informazioni pubblicate da terzi

Contatta per l'annuncio

Ricevi più proposte: le caratteristiche dell'immobile che stai cercando ed i tuoi recapiti, verranno inviati alle agenzie immobiliari della zona di tuo interesse

Registrandoti a questo servizio dichiari di aver letto e di accettare l'Informativa alla Privacy

* I campi con l'asterisco sono obbligatori

CONSULENZA Prestiti
Personali e MUTUO