immobilimpresa

Ufficio in Vendita Rubiera

650.000 calcola mutuo

Mq. 676

8 locali

Clicca sull'immagine per ingrandirla

Rubiera

(RE) Viale della Stazione, N. 1
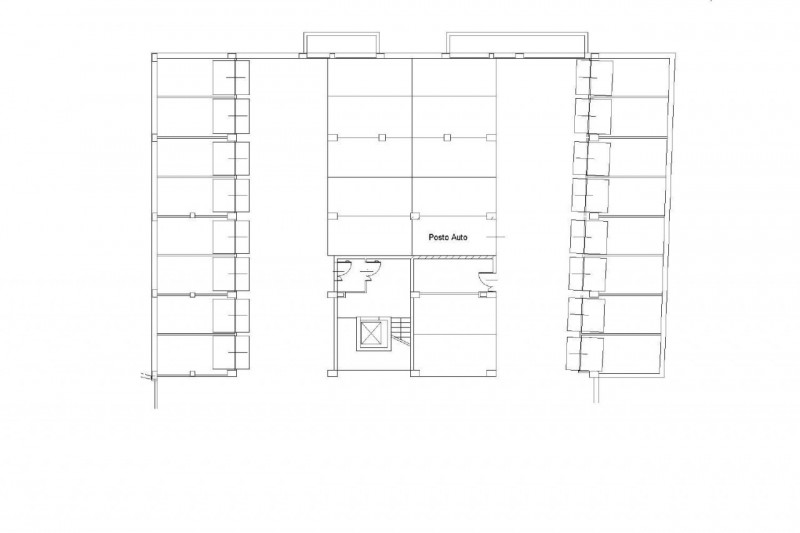
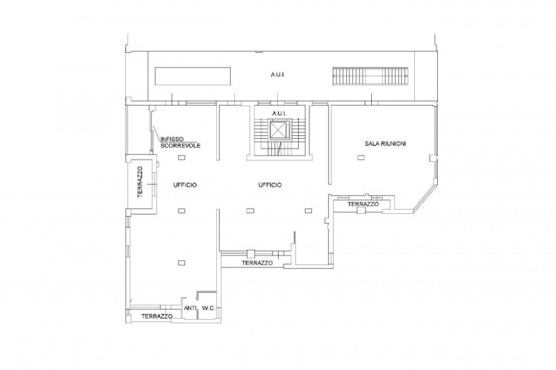
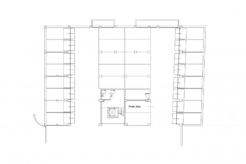
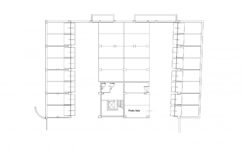
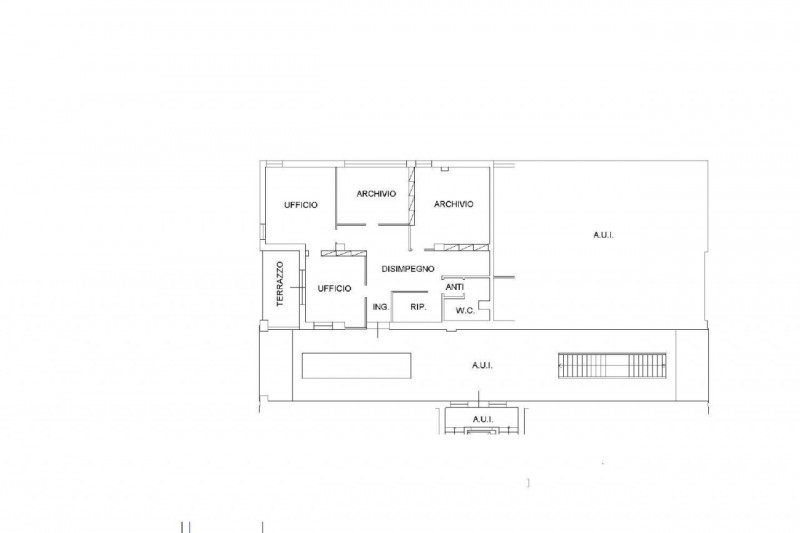
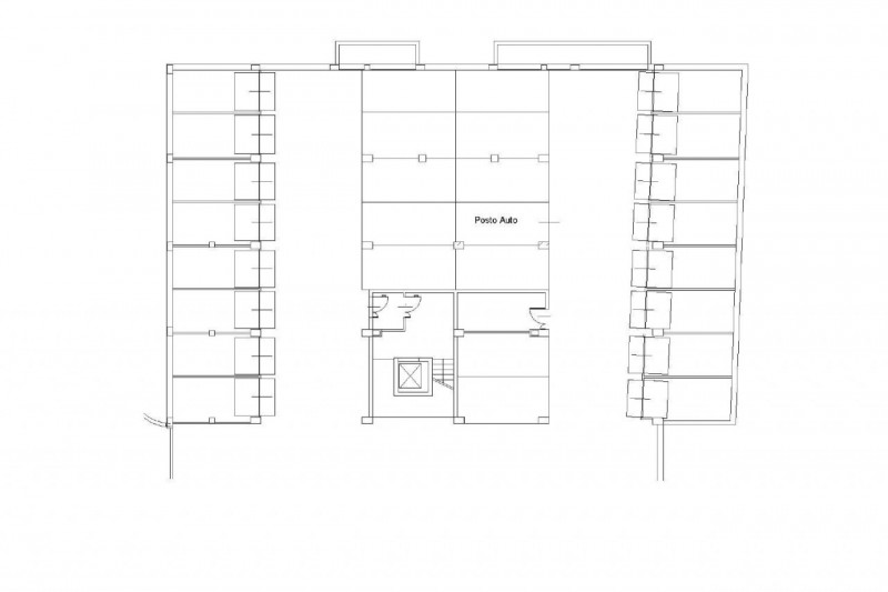
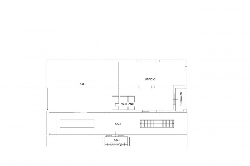
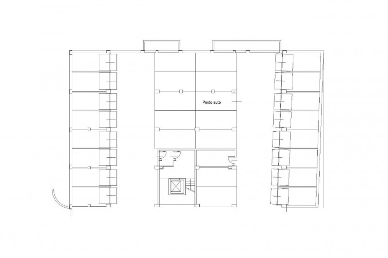
Immobilimpresa 10923763Riferimento Agenzia 25772 – Situato nel centro del Comune di Rubiera (RE), in Via della Stazione, proponiamo in vendita tre unità immobiliari ad uso ufficio con cinque posti auto coperti. I beni fanno parte di una palazzi... Vedi di più
Prezzo: € 650.000   Fai una controproposta

Hai un immobile simile da vendere? Vendine uno uguale

La responsabilità del contenuto dell'annuncio fa capo all'inserzionista, non forniamo garanzie per le informazioni pubblicate da terzi

Contatta per l'annuncio

Ricevi più proposte: le caratteristiche dell'immobile che stai cercando ed i tuoi recapiti, verranno inviati alle agenzie immobiliari della zona di tuo interesse

Registrandoti a questo servizio dichiari di aver letto e di accettare l'Informativa alla Privacy

* I campi con l'asterisco sono obbligatori

CONSULENZA Prestiti
Personali e MUTUO