immobilimpresa

Locale commerciale/Negozio in Vendita Civitanova Marche

€ trattativa riservata

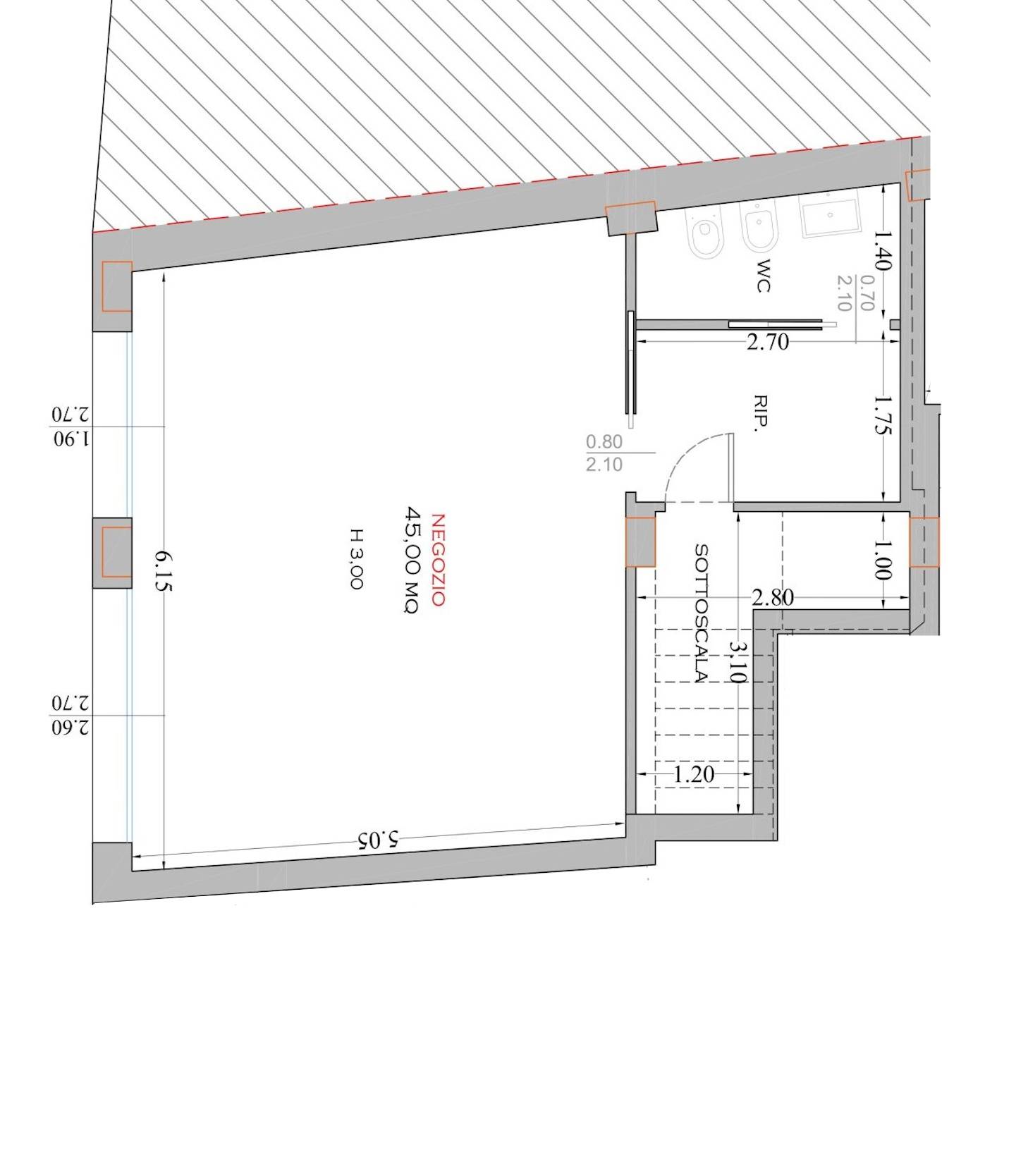
Mq. 45

Clicca sull'immagine per ingrandirla

Civitanova Marche

(MC)
Immobilimpresa 10971753Riferimento Agenzia v1100 – In valida posizione commerciale, a pochi passi dalla centralissima Piazza XX Settembre, locale commerciale delle dimensioni totali di circa 45 mq composto di unico ampio vano dotato di 2 vetrine su st... Vedi di più
Prezzo: Trattativa riservata   Fai una controproposta

Hai un immobile simile da vendere? Vendine uno uguale

La responsabilità del contenuto dell'annuncio fa capo all'inserzionista, non forniamo garanzie per le informazioni pubblicate da terzi

Contatta per l'annuncio

Ricevi più proposte: le caratteristiche dell'immobile che stai cercando ed i tuoi recapiti, verranno inviati alle agenzie immobiliari della zona di tuo interesse

Registrandoti a questo servizio dichiari di aver letto e di accettare l'Informativa alla Privacy

* I campi con l'asterisco sono obbligatori

CONSULENZA Prestiti
Personali e MUTUO