immobilimpresa

Capannone in Vendita Bozzolo

230.000 calcola mutuo

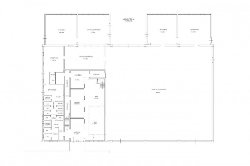
Mq. 1731

7 locali

Clicca sull'immagine per ingrandirla

Bozzolo

(MN) viale Lombardia, N. 9
Immobilimpresa 10977822Riferimento Agenzia 23858 – Capannone commerciale composto da un fabbricato a due piani fuori terra e area di pertinenza, costituito da porzione di immobile ad uso prevalente per deposito veicoli, uffici/magazzini e servizi igie... Vedi di più
Prezzo: € 230.000   Fai una controproposta

Hai un immobile simile da vendere? Vendine uno uguale

La responsabilità del contenuto dell'annuncio fa capo all'inserzionista, non forniamo garanzie per le informazioni pubblicate da terzi

Contatta per l'annuncio

Ricevi più proposte: le caratteristiche dell'immobile che stai cercando ed i tuoi recapiti, verranno inviati alle agenzie immobiliari della zona di tuo interesse

Registrandoti a questo servizio dichiari di aver letto e di accettare l'Informativa alla Privacy

* I campi con l'asterisco sono obbligatori

CONSULENZA Prestiti
Personali e MUTUO