immobilimpresa

Capannone in Vendita Ravenna

1.407.000 calcola mutuo

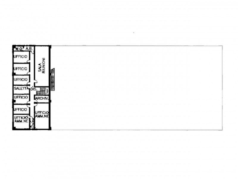
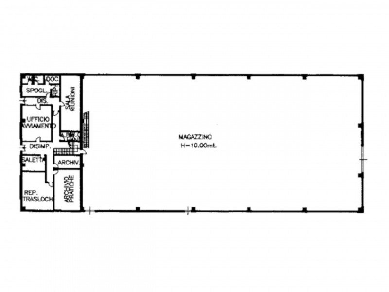
Mq. 2288

13 locali

Clicca sull'immagine per ingrandirla

Ravenna

(RA) Via G. Bacci, 44, 48123 Ravenna RA, Italia
Immobilimpresa 10978387Riferimento Agenzia 2638717 – Quest’immobile viene venduto tramite asta online. Capannone con uffici e corte sito a Ravenna (RA), in via Bacci 44. Trattasi di ampio capannone artigianale con uffici direzionali e corte escl... Vedi di più
Prezzo: € 1.407.000   Fai una controproposta

Hai un immobile simile da vendere? Vendine uno uguale

La responsabilità del contenuto dell'annuncio fa capo all'inserzionista, non forniamo garanzie per le informazioni pubblicate da terzi

Contatta per l'annuncio

Ricevi più proposte: le caratteristiche dell'immobile che stai cercando ed i tuoi recapiti, verranno inviati alle agenzie immobiliari della zona di tuo interesse

Registrandoti a questo servizio dichiari di aver letto e di accettare l'Informativa alla Privacy

* I campi con l'asterisco sono obbligatori

CONSULENZA Prestiti
Personali e MUTUO