immobilimpresa

Locale commerciale/Negozio in Affitto Padova

1.800

Mq. 200

Clicca sull'immagine per ingrandirla

Pontecorvo

- Padova (PD) Pontecorvo
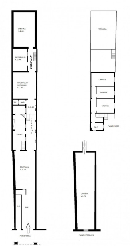
Immobilimpresa 10981018Riferimento Agenzia A16-c – PONTECORVO: Affittasi locale commerciale ideale come Ufficio o Negozio. Il locale si sviluppa su più piani. Al piano terra troviamo ingresso, bagni, sale in open space, magazzino e deposito. Al... Vedi di più
Prezzo: € 1.800   Fai una controproposta

Hai un immobile simile da vendere? Vendine uno uguale

La responsabilità del contenuto dell'annuncio fa capo all'inserzionista, non forniamo garanzie per le informazioni pubblicate da terzi

Contatta per l'annuncio

Ricevi più proposte: le caratteristiche dell'immobile che stai cercando ed i tuoi recapiti, verranno inviati alle agenzie immobiliari della zona di tuo interesse

Registrandoti a questo servizio dichiari di aver letto e di accettare l'Informativa alla Privacy

* I campi con l'asterisco sono obbligatori

CONSULENZA Prestiti
Personali e MUTUO